Vendu

327 Ch. du Panorama #102, Potton

Présenté par : Marie-Elaine Hvizdak

Prix
789 000 $
Type de propriété
Appartement
Numéro d'inscription
11457974
Condo Ski-in/ski-out, Mont Owl's Head avec droit d'accès à un quai (#67) à la marina Owl's Head sur le Lac Memphrémagog; unité adjacente à la marina et au Club-Lac (Glaz 2): 3 chambres, 2 salles de bain, foyer au gaz. Ascenseur, grand casier à ski avec séchoir à bottes, espace de rangement additionnel et place de stationnement au garage (2ème à l'extérieur), Très belle unité lumineuse ayant un accès direct extérieur avec jolie terrasse; pratique pour accéder rapidement à la propriété sans passer par les aires communes. Tennis privé, sentiers de randonnée et Golf Owl's Head à proximité. Accès au Club-Lac (adhésion obligatoire).
Aperçu de la propriété
  • Année de construction : 2021
  • Nombre de chambres : 3
  • Nombre de pièces : 6
  • Nombre de salle de bain : 2
  • Nombre d'étages : 3
Accès au plan d'eau
Photo aérienne
Extérieur
Photo aérienne
Cuisine
Cuisine
Salle à manger
Salon
Salon
Chambre à coucher principale
Chambre à coucher
Chambre à coucher
Salle de bains
Salle de bains
Salle de lavage
Terrasse
Rangement
Terrasse
Garage
Photo aérienne
Accès au plan d'eau
Piscine
Piscine
Autre
Autre
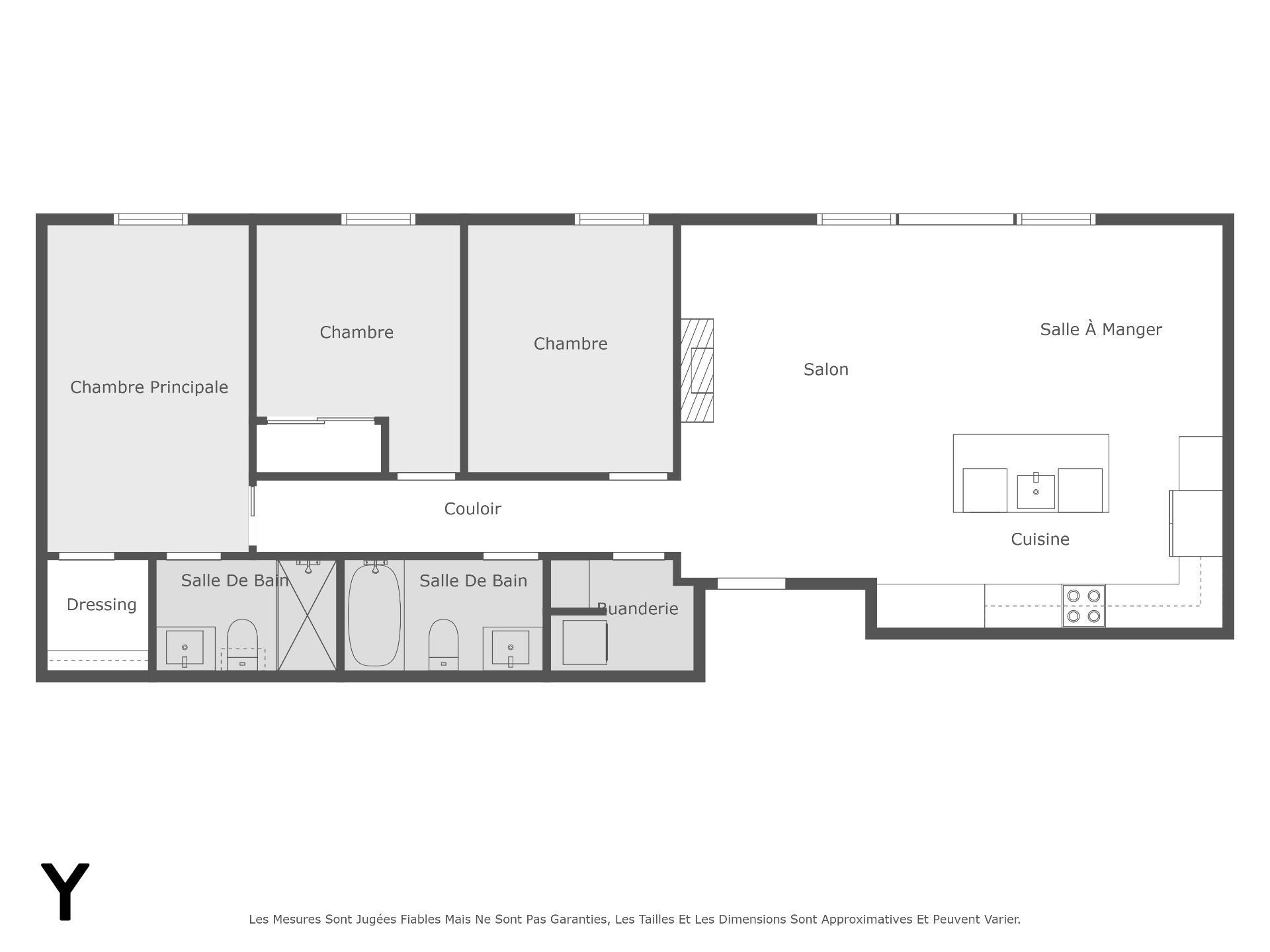
Plan (croquis)

Télécharger toutes les spécifications techniques

Crédit photo : Parc national de la Gorge de Coaticook

Coût et budget

Prix de vente : 789 000 $
Taxes annuelles : 3 919 $
Évaluation municipale : 594 701 $

La propriété vous intéresse ? Contactez-nous pour obtenir plus de renseignements.

Marie-Elaine Hvizdak
Marie-Elaine Hvizdak
Courtier immobilier résidentiel